8241 Pinellas DriveBluffton, SC 29910




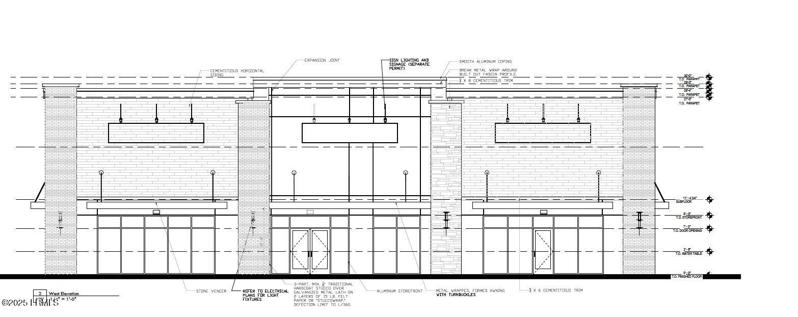
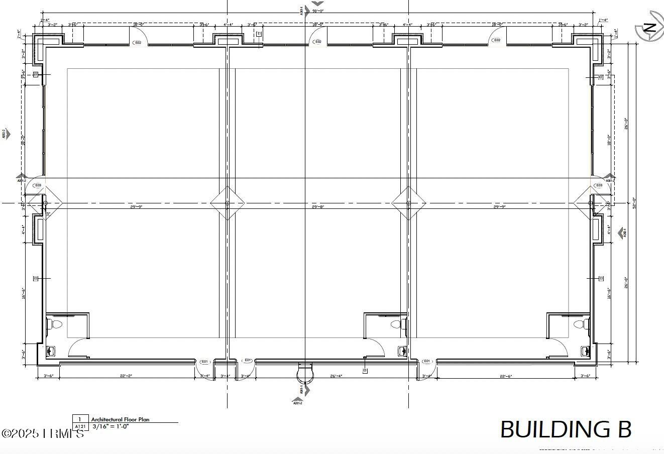
Prime Buckwallter Parkway location. Building A has 1500 sqft of white box space available for lease. Building B has 4500 sqft of shell space available for lease with ribbon slab. The buildings are currently under construction. Zoning is Light Industrial in the Town of Bluffton. Plenty of parking planned and utilities being brought to the buildings. Each leasable space will have restroom, 1 1/2'' water line, 120/280 Volt 3 phase power and 18' clear height to structural frame above. Brick columns, stucco, tabby water table, wood plank siding, with storefront windows and metal awnings. Construction to be completed June 1, 2025.
| 10 months ago | Listing first seen on site | |
| 10 months ago | Listing updated with changes from the MLS® |
Listing information is provided by Participants of the Lowcountry Regional Multiple Listing Service Inc. IDX information is provided exclusively for personal, non-commercial use, and may not be used for any purpose other than to identify prospective properties consumers may be interested in purchasing. Information is deemed reliable but not guaranteed. Copyright 2026, Lowcountry Regional Multiple Listing Service Inc.
Data last updated at: 2026-02-04 07:05 AM UTC



Did you know? You can invite friends and family to your search. They can join your search, rate and discuss listings with you.